您當前所在位置:首頁 > 垂直螺旋輸送機
垂直螺旋輸送機又叫垂直螺旋上料機,垂直立式螺旋輸送機,主要用于大傾角或90°垂直輸送粉狀、粒、非粘性的容重≤1.3t/m3的干燥物料,如面粉、化肥、飼料、麥麩、煤粉、谷類等物料,垂直螺旋輸送機的強制進料采用迂回進料方式。這種形式的進料口與垂直螺旋輸送機的機殼成90°連接,適用于流動性差的物料。在驅動裝置的布置上,一般有兩種布置方式:頂驅適用于輸送高度低的場合,占地面積小;底驅適用于輸送高度高的場合,占地面積很大。

固定型垂直螺旋輸送機輸送飼料
移動型垂直螺旋輸送機輸送化工粉末

當螺旋軸轉動時,由于物料的重力及其與槽體壁所產生的摩擦力,使物料只能在葉片的推送下沿著輸送機的槽底向前移動,其情況好像不能旋轉的螺母沿著旋轉的螺桿作平移運動一樣。
當螺旋轉速較高時,物料所受到的離心力大于物料與螺旋表面的摩擦力,物料向螺旋的外緣移動,對料槽壁產生壓力并同時產生摩擦力,當摩擦力大于物料與螺旋表面之間的摩擦力以及物料重力的分力之和時,物料將與螺旋表面之間發生滑動并沿反方向的螺旋形軌跡上升,即物料被垂直部分的螺旋推送上升,從而達到垂直上升輸送的目的,否則只是旋轉而不能上升,將此時的轉速稱為臨界轉速,只有當輸送機的轉速大于臨界轉速時,物料才能實現向上輸送,這是垂直螺旋輸送機的主要特點。
1、輸送量可達140立方/時,進料口到出料口之間的距離是8米,每0.5米一檔,可根據用戶需要選用。
2、大功率振動電機(3.5kw-11kw),轉速高(60-140轉/分),確保送料快速均勻。
3、進料必須保持必要的進料壓力,即采用強制式進料方式。
4、物料進入完全通過物料在密閉管道內的獨立回流進行,滿足防塵要求,充分改善輸送環境。
5、與斗式提升機或氣力輸送系統相比,立式螺旋輸送機具有最緊湊的外形尺寸,幾乎適用于任何工廠布局。


| 螺旋直徑(mm) | 螺旋轉速(r/min) | 輸送量(m³/n) | 輸送高度(m) |
| KLS200 | 200 | 350 | 2.5-15 |
| KLS250 | 250 | 300 | 2.5-15 |
| KLS300 | 315 | 2808 | 2.5-15 |

1、垂直螺旋輸送機由水平進料螺旋和垂直提升螺旋組成,可無級變速,控制流量大小。
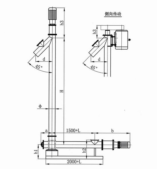
2、垂直提升螺旋的傳動有直聯傳動和側向傳動兩種形式,側向傳動用于高度受限制的場合。
3、電機功率按下面的經驗公式進行計算 N=0.015258856Q•r•H (Kw)式中:N=電機功率(Kw );Q=輸送量(m3/n); r=物料容重(t/m3); H=進料口到出料口之間的距離(m )。
4、長度組合: 垂直螺旋輸送機高度(訂貨高度),是指進料口到出料口之間的距離,從2.5米起到15米止,0.5米一檔,用戶可以根據需要選用。
5、驅動裝置: 垂直螺旋輸送機采用上驅動型式。電機安裝在主機的頭部,動力經皮帶傳送到主軸上,從而帶動螺旋運轉。
6、螺旋軸在物料運動方向的終端有止推軸承以隨物料給螺旋的軸向反力,在機長較長時,應加中間吊掛軸承。

垂直螺旋輸送機是將各種散裝物料從陡坡提升到完全垂直的有效方式,非常適合處理從自由流動到略微流動的干燥到半流體物料,需要水平進料輸送機直接準確計量散裝物料到垂直輸送機入口以獲得效率,提供緊湊的設計,因此不會占用大量地面空間,適用于大多數工廠布局。
垂直式螺旋輸送器上部有軸承支承,大多數采用單列圓錐滾子軸承兩個,安裝此軸承時,不可裝反,以免出現問題。
單列圓錐滾子軸承與向心推力球軸承相似,但承載能力更大,內外圈可分離,間隙容易調整。常用于斜齒輪軸、蝸輪減速器軸、機床主軸等。圓錐滾子軸承主要適用于承受以徑向載荷為主的徑向和軸向聯合載荷,而大錐角圓錐滾子軸承可以用于承受軸向載荷為主的徑軸向聯合載荷。此軸承為分離型軸承,其內圈(含圓錐滾子和保持架)和外圓可以分別安裝。在安裝和使用過程中可以調整軸承的徑向游隙和軸向游隙,也可以預過盈安裝。
單列圓錐滾子軸承3000型,此軸承能夠限制軸或外殼一個方向的軸向位移。承受一個方向的軸向載荷。在徑向載荷作用下會產生附加軸向力,因此,一般在軸的兩個支承中,軸承的外圈和內圈的同名端面相對安裝。如單獨使用,其外加軸向力必須大于附加軸向力。
垂直式螺旋輸送機上部兩單列圓錐滾子軸承在安裝時,要注意,內圈在上面安裝垂直小錐面向上,在下面安裝垂直小錐面向下,兩單列錐滾子軸承相對安裝,這樣就可以支承住實體螺旋面不向下位移,保證生產的正常運轉。

垂直螺旋輸送機的工作條件較惡劣,各個軸承都處于粉塵包圍之中,導熱條件不好,因此在這樣的工作條件下合理操作、保養尤為重要,故要求如下:
螺旋機應無負荷起動,待起動正常后向進口投料。
給料時應均勻限額,給料量要合適以免使機器過載。
停車前,應停止給料,使機殼內物料輸送完后方可停止。
輸送物料內不得混入堅硬大塊,避免螺旋卡死損壞輸送機。
在使用中應檢查各部件的聯結禁錮件是否松動,動力是否發熱,聲音是否正常,一旦有異常,立即停車糾正。
調速電機起動、運行、停止。可以全壓起動亦可降壓起動,電動機起動后合上控制箱電源開關,逐漸調節速度旋鈕,增加激磁電流,離合器轉速逐漸加至需要運行轉速。停車時把調速旋紐調到零位,再停止拖動電機。
各加油部位應定期加油。